Villa a schiera in vendita

Cervia, Via Arezzo - Pinarella
€ 355.000
Prezzo aggiornato
3 locali 3 locali
130 Mq 130 Mq
3 bagni 3 bagni

Villa a schiera in vendita

Cervia, Via Arezzo - Pinarella

Descrizione annuncio

PINARELLA - VILLETTA A SCHIERA RISTRUTTURATA:

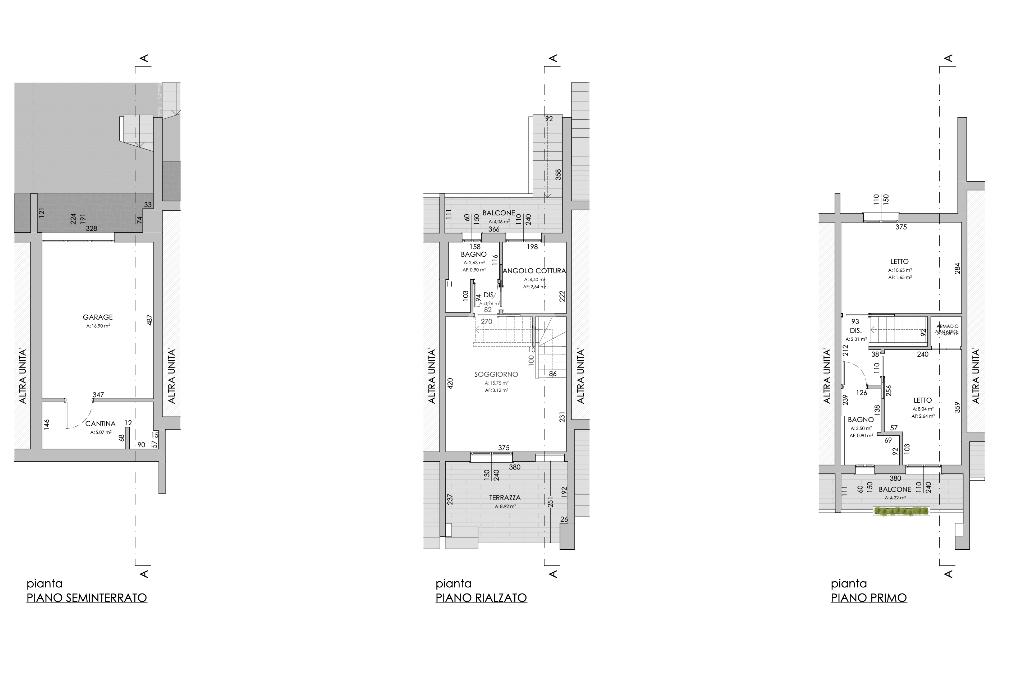
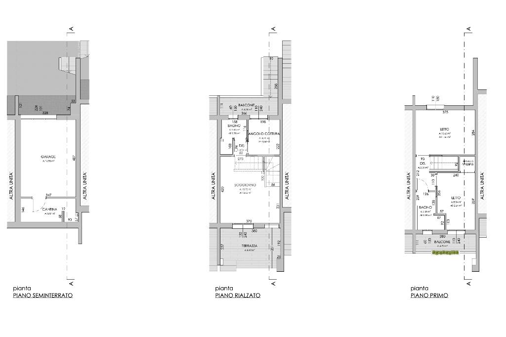
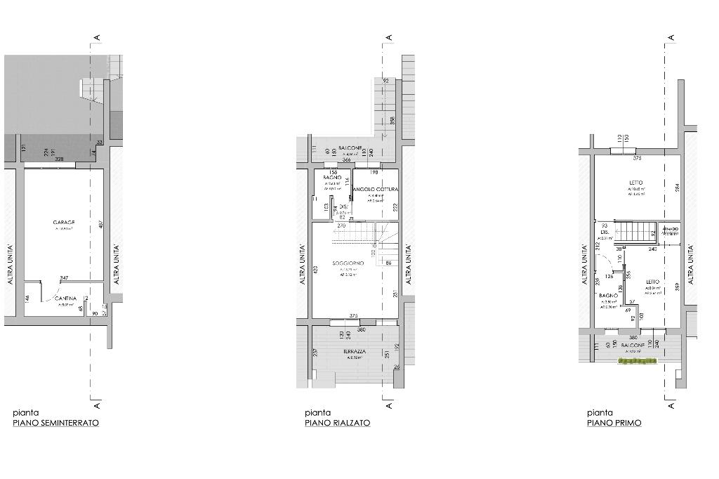
Tecnorete Pinarella propone in esclusiva una splendida villetta a schiera di circa 130 mq, completamente ristrutturata e caratterizzata da ambienti moderni, luminosi e curati in ogni dettaglio. La casa, costruita nel 1985 e oggi riportata a nuova vita grazie a un intervento di ristrutturazione totale, rappresenta una soluzione ideale per chi desidera vivere in un contesto residenziale tranquillo, ben servito e a pochi minuti dal mare.

L’ingresso indipendente introduce a un’abitazione accogliente e funzionale, pensata per garantire privacy e comfort in ogni stagione. Il soggiorno, separato dalla cucina è ben distribuito, perfetto per trascorrere momenti conviviali in famiglia o con gli amici. La zona notte comprende due camere da letto confortevoli e ben illuminate, mentre i tre bagni, entrambi rinnovati con materiali moderni e sanitari sospesi, offrono praticità ed eleganza.

A completare gli spazi interni troviamo una taverna versatile, ideale come ambiente relax, studio o area hobby, e un garage privato che aggiunge ulteriore comodità alla vita quotidiana.

Uno dei punti di forza della proprietà è il giardino privato, un vero valore aggiunto per chi ama vivere all’aperto, organizzare cene estive o semplicemente rilassarsi in un angolo verde riservato. L’abitazione è dotata di riscaldamento a pavimento e caldaia a condensazione, soluzioni che garantiscono un’elevata efficienza energetica e un comfort termico ottimale durante tutto l’anno. Gli impianti sono certificati e conformi alle normative vigenti, offrendo sicurezza e affidabilità.

La villetta si trova in una zona residenziale molto apprezzata, caratterizzata da tranquillità, servizi facilmente raggiungibili e un’atmosfera ideale per famiglie, coppie o chiunque desideri un’abitazione moderna e pronta da vivere.

Per informazioni oppure organizzare una visita, contattaci al 388 4580525 o al 328 2218151 o puoi scrivere alla mail ra2a3

Mostra tutto

Nelle vicinanze

Trasporto pubblico Trasporto pubblico
Pinarella Deledda Ferrara
Pinarella Deledda Ferrara
2,2 Km
Bivio Zadina Camping
Bivio Zadina Camping
2,4 Km
Ricariche auto elettriche Ricariche auto elettriche
Cervia Piazzale Val d'Isère | EnelX
220 m
Cervia Montale | EnelX
980 m
Cervia Deledda | EnelX
1,8 Km
Cervia Centro Sportivo Liberazione | EnelX
2,3 Km
Cervia Via Levico | EnelX
2,6 Km
Scuole Scuole
Scuola Primaria Statale "A. Manzi"
1,1 Km
Scuola Primaria Statale "Aldo Spallicci"
2,6 Km
Farmacia Farmacia
Farmacia Comunale n.1
1,0 Km
Farmacia
1,7 Km
Farmacia Madonna del Mare
2,5 Km
Supermercati Supermercati
Conad
1,0 Km
Conad Pinarella
1,2 Km
Crai
1,6 Km
Momo Spin
2,8 Km
Eurospin
2,8 Km
Negozi Negozi
Negozi
1,7 Km
Bar Bar
Nuovo fiore
1,2 Km
Al KM175
1,3 Km
Bar Pasticceria Ketty
1,4 Km
bagno vega
1,6 Km
Club 99
2,0 Km
Ristoranti Ristoranti
Delfino
250 m
Lo Scoglio
330 m
Tipiko
910 m
Kiosko Beach Piadina e Crescioni
980 m
Pasta fresca Il mattarello
1,0 Km
Mostra tutto

Caratteristiche

Rif.:
61156925
Piano:
1 di 2 (Piano terra con giardino)
Box:
1
Posti auto:
1
Balconi:
2
Terrazzi:
1
Mostra tutto
Prezzo Prezzo
€ 355.000
Rata mutuo Rata mutuo
€ 1.685 / mese
Spese annue Spese annue
€ 300
Proponi il tuo prezzoProponi il tuo prezzo

Classe Energetica

C
C
C
C
C
C
C
C
C
EP invernale del fabbricato:
EP estiva del fabbricato:
Anno di costruzione:
1985
Riscaldamento:
Autonomo
Tipo impianto:
A pavimento
Tipo alimentazione:
Pannelli

Prezzo ridotto di €1 (1%%)

Ti interessa visionare l'immobile?

Fissa un appuntamento  Fissa un appuntamento

Richiedi informazioni

Clicca su Leggi per aprire l'informativa
* Questi campi sono obbligatori

Calcola il tuo mutuo

Semplice e senza impegno
Anticipo

( % )
Mutuo

( % )

pochi semplici passi

inserisci i tuoi dati
Questionario completato
Grazie per aver richiesto un appuntamento senza impegno con un nostro Consulente del Credito e Assicurativo.

Hai inserito correttamente tutti i dati necessari e a breve riceverai una e-mail con un link da convalidare per inviare i tuoi dati.
Affiliato
Studio Pinarella Srl
Via Caduti per la Libertà, 276 48015 Cervia (RA)

Il nostro staff


  • Sofia Michelacci
    Affiliata

  • Michele Epifani
    Affiliato

  • Angelica Paolucci
    Coordinatrice

  • Davide Perazzini
    Affiliato
Via Caduti per la Libertà, 276 48015 Cervia (RA)
Zona: Cervia-Pinarella-Tagliata-Villa Inferno-Montaletto-Pisignano-Castiglione di Cervia
Mostra su mappa
Affiliato
Studio Pinarella Srl
Via Caduti per la Libertà, 276 48015 Cervia (RA)

2026 Tecnocasa Franchising S.p.A. - P. IVA 08365160152 - Via Monte Bianco 60/A 20089 Rozzano (MI). Ogni agenzia ha un proprio titolare ed è autonoma. Privacy policy | Policy utilizzo | Cookie policy