Villa singola in vendita

Cervia, Via Sospiri - Savio Di Cervia
€ 380.000
4 locali 4 locali
150 Mq 150 Mq

Villa singola in vendita

Cervia, Via Sospiri - Savio Di Cervia

Descrizione annuncio

SAVIO DI CERVIA - VILLA INDIPENDENTE:

Villa indipendente con ampio terreno a Savio di CerviaVilla indipendente con ampio terreno a Savio di Cervia
Se sogni una casa immersa nella tranquillità della campagna ma a pochi minuti dal mare, questa villa indipendente trilocale a Savio di Cervia è la soluzione ideale.


Completamente ristrutturata nel 1992 e mantenuta con grande cura, è pronta per essere abitata — viene venduta arredata e chiavi in mano.
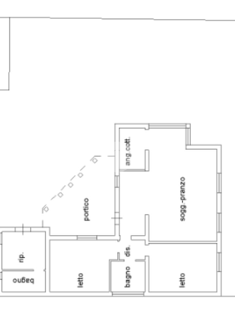
La casa si sviluppa tutta su un unico piano e offre spazi comodi e ben distribuiti:

• Soggiorno ampio e luminoso, con zona pranzo e area relax separate.

• Cucina semi abitabile, funzionale e completa di elettrodomestici.

• Due camere matrimoniali spaziose e silenziose.

• Bagno finestrato con box doccia moderno.
All’esterno troviamo un grande giardino privato e oltre un ettaro di terreno pianeggiante, perfetto per chi ama la natura o desidera coltivare un orto, un frutteto o realizzare un piccolo maneggio. Sono già predisposte due stalle.

Completano la proprietà un garage doppio, un servizio esterno con bagno (ideale come lavanderia o spogliatoio) e ampia area parcheggio per più auto.
La posizione è tranquilla e riservata, ma comoda ai servizi e a pochi minuti dalle spiagge di Cervia e Milano Marittima.

Prezzo richiesto: € 380.000 trattabili.
Per informazioni o per fissare una visita contattare Sofia – 328 221 8151.

Mostra tutto

Nelle vicinanze

Trasporto pubblico Trasporto pubblico
Lido Di Classe / Lido Di Savio
Lido Di Classe / Lido Di Savio
1,2 Km
Bus to Mirabilandia (1,5€)
Bus to Mirabilandia (1,5€)
1,2 Km
Bar Bar
La Villa
1,4 Km
Ristoranti Ristoranti
Trattoria Ca' Rossi da Topo
1,5 Km
CaMì Agriturismo
1,9 Km
Casa delle Aie
2,2 Km
Agriturismo La Casina
2,9 Km
Mostra tutto

Caratteristiche

Rif.:
61147419
Piano:
1 di 1 (Piano terra con giardino)
Box:
1
Posti auto:
1
Camere da letto:
2
Arredamento:
Parziale
Mostra tutto
Prezzo Prezzo
€ 380.000
Rata mutuo Rata mutuo
€ 1.804 / mese
Spese annue Spese annue
€ 0
Proponi il tuo prezzoProponi il tuo prezzo

Classe Energetica

E
E
E
E
E
E
E
E
E
EP invernale del fabbricato:
EP estiva del fabbricato:
Anno di costruzione:
1960
Riscaldamento:
Autonomo
Tipo impianto:
A radiatori
Tipo alimentazione:
Metano

Ti interessa visionare l'immobile?

Fissa un appuntamento  Fissa un appuntamento

Richiedi informazioni

Clicca su Leggi per aprire l'informativa
* Questi campi sono obbligatori

Calcola il tuo mutuo

Semplice e senza impegno
Anticipo

( % )
Mutuo

( % )

pochi semplici passi

inserisci i tuoi dati
Questionario completato
Grazie per aver richiesto un appuntamento senza impegno con un nostro Consulente del Credito e Assicurativo.

Hai inserito correttamente tutti i dati necessari e a breve riceverai una e-mail con un link da convalidare per inviare i tuoi dati.
Affiliato
Studio Pinarella Srl
Via Caduti per la Libertà, 276 48015 Cervia (RA)

Il nostro staff


  • Sofia Michelacci
    Affiliata

  • Michele Epifani
    Affiliato

  • Angelica Paolucci
    Coordinatrice

  • Davide Perazzini
    Affiliato
Via Caduti per la Libertà, 276 48015 Cervia (RA)
Zona: Cervia-Pinarella-Tagliata-Villa Inferno-Montaletto-Pisignano-Castiglione di Cervia
Mostra su mappa
Affiliato
Studio Pinarella Srl
Via Caduti per la Libertà, 276 48015 Cervia (RA)

2026 Tecnocasa Franchising S.p.A. - P. IVA 08365160152 - Via Monte Bianco 60/A 20089 Rozzano (MI). Ogni agenzia ha un proprio titolare ed è autonoma. Privacy policy | Policy utilizzo | Cookie policy