Trilocale in vendita

Cervia, Via Pinarella - Tagliata
€ 360.000
3 locali 3 locali
90 Mq 90 Mq
1 bagno 1 bagno

Trilocale in vendita

Cervia, Via Pinarella - Tagliata

Descrizione annuncio

PINARELLA - APPARTAMENTI DI NUOVA COSTRUZIONE PRONTI ENTRO ESTATE 2026:

A soli 550 metri dalla spiaggia e dalla splendida pineta, proponiamo appartamenti di nuova costruzione in una palazzina elegante e moderna composta da sole 6 unità, servita da ascensore.

La consegna è prevista entro l’estate 2026.

Caratteristiche principali

L’edificio è progettato secondo i più elevati standard di comfort ed efficienza:

Riscaldamento a pavimento con pompa di calore Mitsubishi da 800 Kw

Impianto fotovoltaico da 3 kW

Infissi in PVC bianchi ad alte prestazioni

Porte interne laccate bianche

Frangisole

Predisposizione aria condizionata

Ottimo isolamento termico e acustico

Possibilità di personalizzare le finiture grazie a un capitolato di pregio.

Ogni appartamento dispone di posto auto scoperto e possibilità di acquistare una cantina di 10 mq.

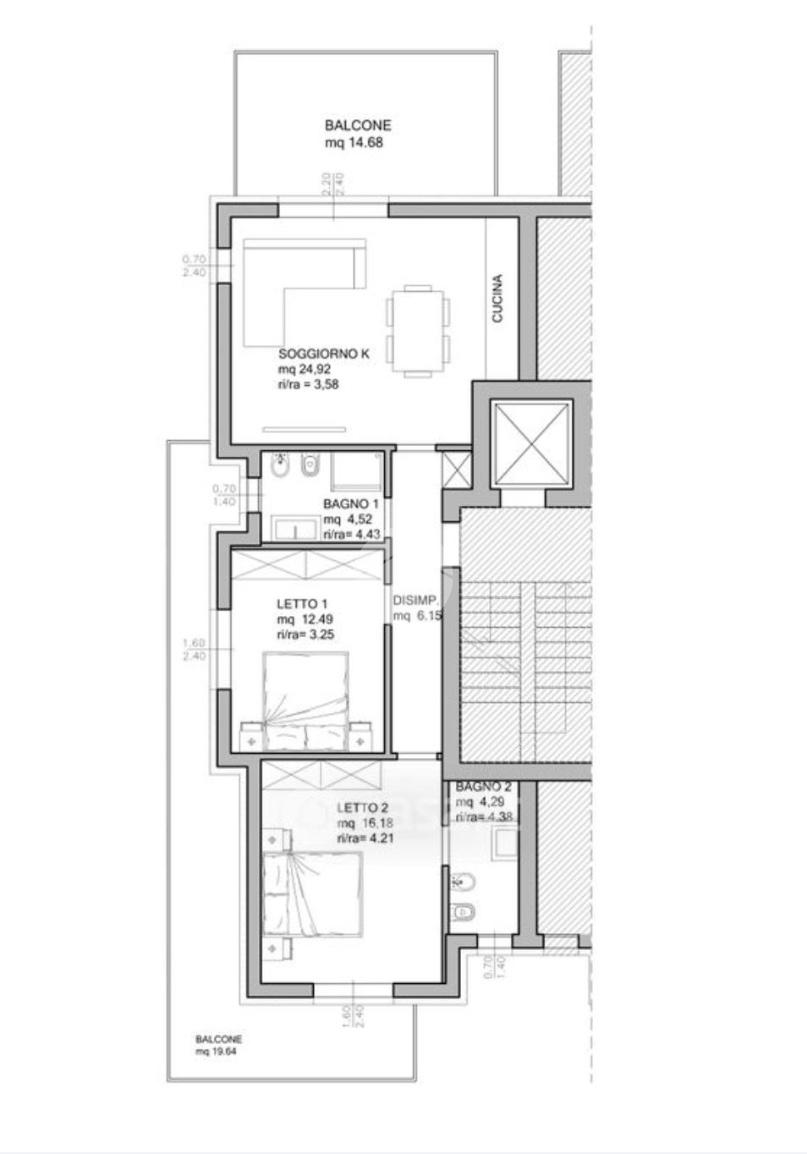
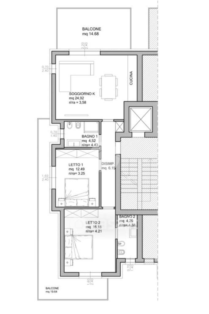
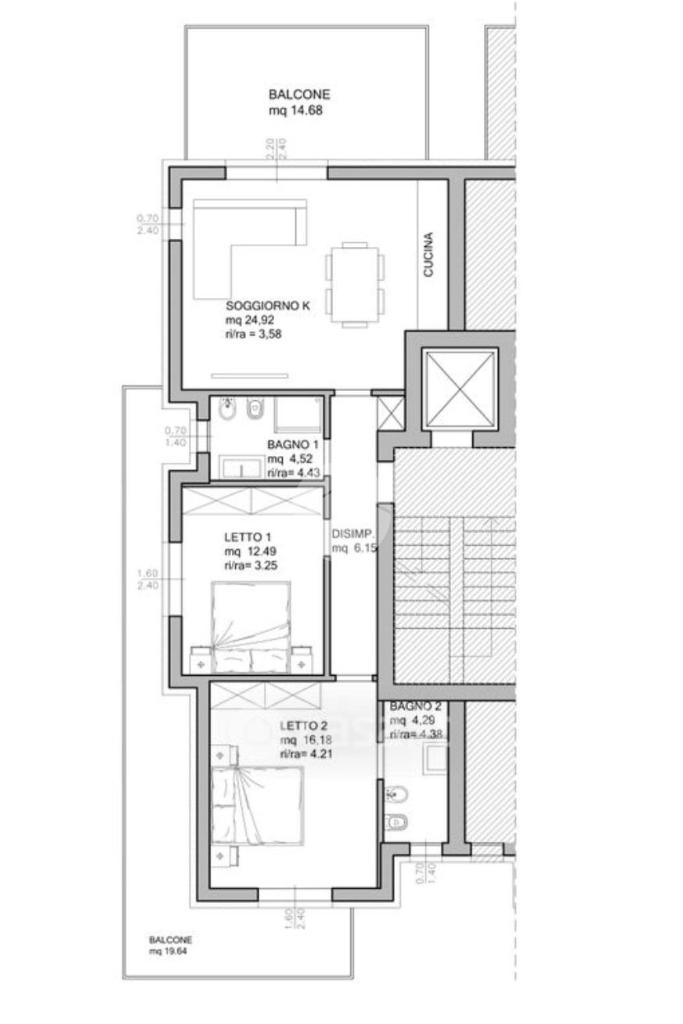
Tipologie disponibiliPiano Terra – lato mare

Soggiorno con affaccio sul giardino

Due camere da letto

Due bagni

Primo Piano

Soggiorno con angolo cottura e accesso a un terrazzo abitabile di 15 mq

Due camere da letto con affaccio su secondo terrazzo

Due bagni

Secondo Piano – lato Cervia

Soggiorno con angolo cottura e terrazzo abitabile di 15 mq

Due camere da letto con secondo terrazzo

Due bagni, di cui uno dedicato alla camera padronale


Per informazioni oppure organizzare una visita, contattaci al 328 221 8151 oppure 388 458 0525

Mostra tutto

Nelle vicinanze

Trasporto pubblico Trasporto pubblico
Bivio Zadina Camping
Bivio Zadina Camping
1,4 Km
Cesenatico Mazzini Cavour
Cesenatico Mazzini Cavour
2,4 Km
Ricariche auto elettriche Ricariche auto elettriche
Cervia Piazzale Val d'Isère | EnelX
1,2 Km
Cervia Montale | EnelX
1,9 Km
Cervia Deledda | EnelX
2,7 Km
Scuole Scuole
Scuola Primaria Statale "A. Manzi"
170 m
Scuola Primaria "Leonardo Da Vinci"
2,8 Km
Farmacia Farmacia
Farmacia
810 m
Farmacia Comunale n.1
2,0 Km
Farmacia San Pietro
2,6 Km
Supermercati Supermercati
Crai
640 m
Conad
1,9 Km
Conad Pinarella
2,1 Km
Famila
2,8 Km
Eurospin
2,9 Km
Negozi Negozi
Negozi
790 m
Bar Bar
Al KM175
420 m
Bar Pasticceria Ketty
520 m
bagno vega
800 m
Nuovo fiore
2,2 Km
Fuorionda Piadina
2,4 Km
Ristoranti Ristoranti
Kiosko Beach Piadina e Crescioni
240 m
Dal Pescatore rist. pizz.
790 m
bagno vega
800 m
Ristoranti
870 m
Bar Pizzeria Ristorante Gabbiano
930 m
Mostra tutto

Caratteristiche

Rif.:
61179774
Piano:
1 di 2 con ascensore (Piano medio)
Posti auto:
1
Terrazzi:
2
Camere da letto:
2
Arredamento:
Assente
Mostra tutto
Prezzo Prezzo
€ 360.000
Rata mutuo Rata mutuo
€ 1.709 / mese
Spese annue Spese annue
€ 0
Proponi il tuo prezzoProponi il tuo prezzo

Classe Energetica

Questo immobile è esente da classe energetica
Anno di costruzione:
2026
Riscaldamento:
Autonomo
Tipo impianto:
A pavimento
Tipo alimentazione:
Pannelli

Ti interessa visionare l'immobile?

Fissa un appuntamento  Fissa un appuntamento

Richiedi informazioni

Clicca su Leggi per aprire l'informativa
* Questi campi sono obbligatori

Calcola il tuo mutuo

Semplice e senza impegno
Anticipo

( % )
Mutuo

( % )

pochi semplici passi

inserisci i tuoi dati
Questionario completato
Grazie per aver richiesto un appuntamento senza impegno con un nostro Consulente del Credito e Assicurativo.

Hai inserito correttamente tutti i dati necessari e a breve riceverai una e-mail con un link da convalidare per inviare i tuoi dati.
Affiliato
Studio Pinarella Srl
Via Caduti per la Libertà, 276 48015 Cervia (RA)

Il nostro staff


  • Sofia Michelacci
    Affiliata

  • Michele Epifani
    Affiliato

  • Angelica Paolucci
    Coordinatrice

  • Davide Perazzini
    Affiliato
Via Caduti per la Libertà, 276 48015 Cervia (RA)
Zona: Cervia-Pinarella-Tagliata-Villa Inferno-Montaletto-Pisignano-Castiglione di Cervia
Mostra su mappa
Affiliato
Studio Pinarella Srl
Via Caduti per la Libertà, 276 48015 Cervia (RA)

2026 Tecnocasa Franchising S.p.A. - P. IVA 08365160152 - Via Monte Bianco 60/A 20089 Rozzano (MI). Ogni agenzia ha un proprio titolare ed è autonoma. Privacy policy | Policy utilizzo | Cookie policy