Trilocale in vendita

Cervia, Via Caduti per la libertà - Pinarella
€ 435.000
Prezzo aggiornato
4 locali 4 locali
130 Mq 130 Mq
2 bagni 2 bagni

Trilocale in vendita

Cervia, Via Caduti per la libertà - Pinarella

Descrizione annuncio

NUOVA COSTRUZIONE – CLASSE A4 – STRUTTURA IN XLAM

Le Ville di Cervia rappresentano un nuovo e prestigioso intervento residenziale composto da 10 ville indipendenti, tutte dotate di ingresso privato e giardino esclusivo.

Il complesso sorge in una posizione strategica, a pochi minuti dal mare e dal centro di Cervia.

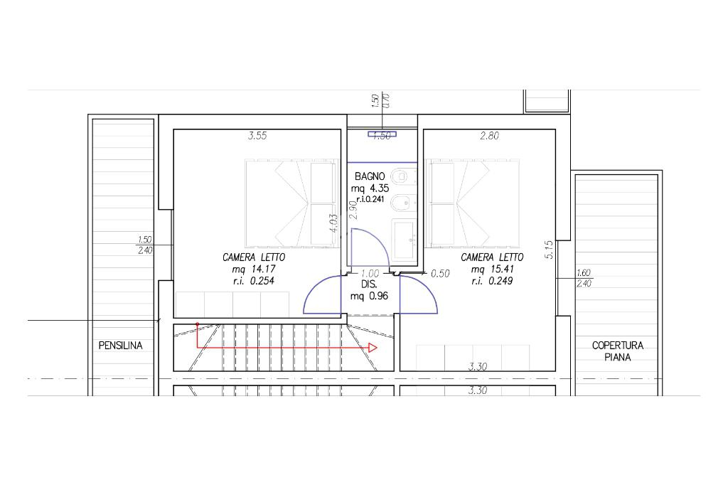
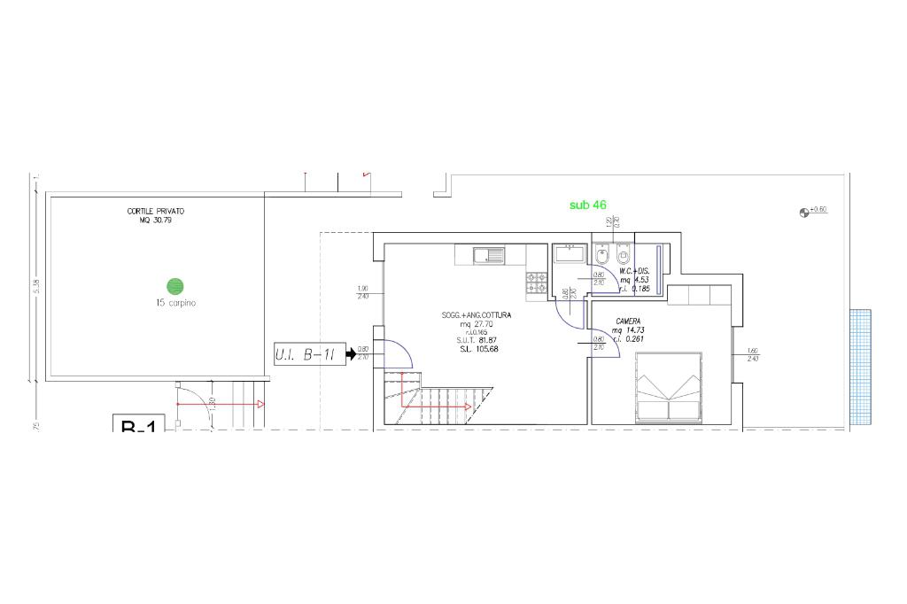
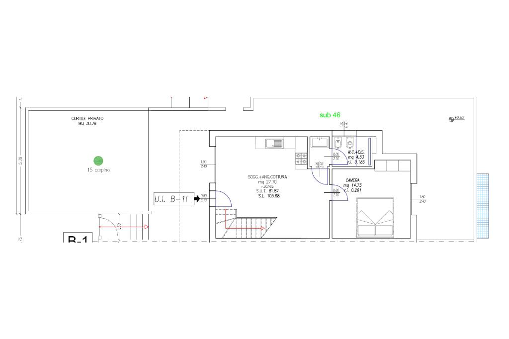
La villa si sviluppa su due livelli, progettati per garantire spazi funzionali e un elevato comfort abitativo.

Piano terra:

- Soggiorno con cucina a vista

- Ampia veranda illuminata da una grande vetrata

- Bagno finestrato con antibagno

- Possibilità di ricavare una camera singola con accesso diretto al giardino

Piano secondo:

- Due camere matrimoniali

- Bagno finestrato di generose dimensioni

È possibile acquistare posto auto o garage all’interno del complesso.

Superficie: 130 mq

Prezzi a partire da: 439.000 €

La struttura in XLAM, realizzata con materiali ecosostenibili e certificata secondo gli standard Passivhaus, assicura un’elevata efficienza energetica e un comfort termico ottimale. Le ville sono classificate NZEB (Near Zero Emission Building) e dotate di impianto fotovoltaico per la

La zona è tranquilla, servita e perfettamente collegata: spiaggia, pineta di Pinarella, centro e porto di Cervia sono raggiungibili comodamente anche in bicicletta. Nelle vicinanze si trovano tutti i principali servizi.

Dotazioni tecniche:

Classe energetica A4

Pompa di calore con impianto canalizzato per riscaldamento e raffrescamento

- Impianto fotovoltaico

- Infissi con doppio vetro

- Tapparelle in alluminio coibentate e motorizzate

- Ampia possibilità di personalizzazione delle finiture interne

PER INFORMAZIONI OPPURE ORGANIZZARE UNA VISITA IN CANTIERE, CONTATTACI:

328 221 8151 o 388 458 0525

Mostra tutto

Nelle vicinanze

Trasporto pubblico Trasporto pubblico
Cervia-Milano Marittima
Cervia-Milano Marittima
1,9 Km
Pinarella Deledda Ferrara
Pinarella Deledda Ferrara
1,3 Km
Cervia Milazzo
Cervia Milazzo
1,6 Km
Ricariche auto elettriche Ricariche auto elettriche
Cervia Montale | EnelX
680 m
Cervia Centro Sportivo Liberazione | EnelX
870 m
Cervia Deledda | EnelX
1,1 Km
Cervia Via Levico | EnelX
1,2 Km
Cervia Piazzale Val d'Isère | EnelX
1,3 Km
Scuole Scuole
Scuola Primaria Statale "Aldo Spallicci"
1,3 Km
Scuola Media Ressi Gervasi
1,7 Km
Scuola di Musica Gioacchino Rossini
2,1 Km
Scuola Primaria "Giovanni Pascoli"
2,1 Km
Scuole
2,4 Km
Farmacia Farmacia
Farmacia Comunale n.1
640 m
Farmacia Madonna del Mare
1,1 Km
Farmacia
1,6 Km
Farmacia Bedeschi
2,2 Km
Farmacia Comunale n.2
2,2 Km
Ospedali Ospedali
San Giorgio
2,1 Km
Supermercati Supermercati
Conad Pinarella
420 m
Conad
540 m
Eurospin
1,3 Km
Conad Cervia
1,4 Km
Momo Spin
1,5 Km
Negozi Negozi
Forno Valzania
2,2 Km
Truky
2,2 Km
Bar Bar
Club 99
830 m
Nuovo fiore
970 m
Just Café
1,4 Km
Portò
2,3 Km
Living Room
2,3 Km
Ristoranti Ristoranti
full moon
440 m
Pasta fresca Il mattarello
610 m
Il Moro
780 m
Da Luciano
820 m
Tipiko
850 m
Mostra tutto

Caratteristiche

Rif.:
61176830
Piano:
2 di 2
Camere da letto:
2
Arredamento:
Assente
Condizionamento:
Autonomo
Ascensore:
No
Mostra tutto
Prezzo Prezzo
€ 435.000
Rata mutuo Rata mutuo
€ 2.031 / mese
Proponi il tuo prezzoProponi il tuo prezzo

Classe Energetica

Questo immobile è esente da classe energetica
Anno di costruzione:
2026
Riscaldamento:
Autonomo
Tipo impianto:
A pavimento
Tipo alimentazione:
Pannelli

Prezzo ridotto di €1 (1%%)

Ti interessa visionare l'immobile?

Fissa un appuntamento  Fissa un appuntamento

Richiedi informazioni

Clicca su Leggi per aprire l'informativa
* Questi campi sono obbligatori

Calcola il tuo mutuo

Semplice e senza impegno
Anticipo

( % )
Mutuo

( % )

pochi semplici passi

inserisci i tuoi dati
Questionario completato
Grazie per aver richiesto un appuntamento senza impegno con un nostro Consulente del Credito e Assicurativo.

Hai inserito correttamente tutti i dati necessari e a breve riceverai una e-mail con un link da convalidare per inviare i tuoi dati.
Affiliato
Studio Pinarella Srl
Prossima Apertura, 48015 Cervia (RA)

Il nostro staff


  • Sofia Michelacci
    Affiliata

  • Michele Epifani
    Affiliato

  • Angelica Paolucci
    Coordinatrice

  • Davide Perazzini
    Affiliato
Prossima Apertura, 48015 Cervia (RA)
Zona: Cervia-Pinarella-Tagliata-Villa Inferno-Montaletto-Pisignano-Castiglione di Cervia
Mostra su mappa
Affiliato
Studio Pinarella Srl
Prossima Apertura, 48015 Cervia (RA)

2026 Tecnocasa Franchising S.p.A. - P. IVA 08365160152 - Via Monte Bianco 60/A 20089 Rozzano (MI). Ogni agenzia ha un proprio titolare ed è autonoma. Privacy policy | Policy utilizzo | Cookie policy