Quadrilocale in vendita

Cervia, Via Fienilone - Pinarella
Informazioni in agenzia
4 locali 4 locali
123 Mq 123 Mq
3 bagni 3 bagni

Quadrilocale in vendita

Cervia, Via Fienilone - Pinarella

Descrizione annuncio

PINARELLA DI CERVIA - APPARTAMENTOP QUADRILOCALE NUOVA COSTRUZIONE:

Proponiamo in vendita un appartamento finemente arredato con ingresso indipendente, a pochi minuti dalla spiaggia di Pinarella di Cervia.
L’immobile, di recente costruzione e certificato in classe energetica A3, si trova in una palazzina di poche unità abitative, in una zona tranquilla e ben servita.

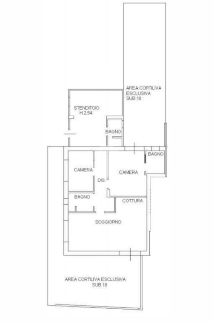
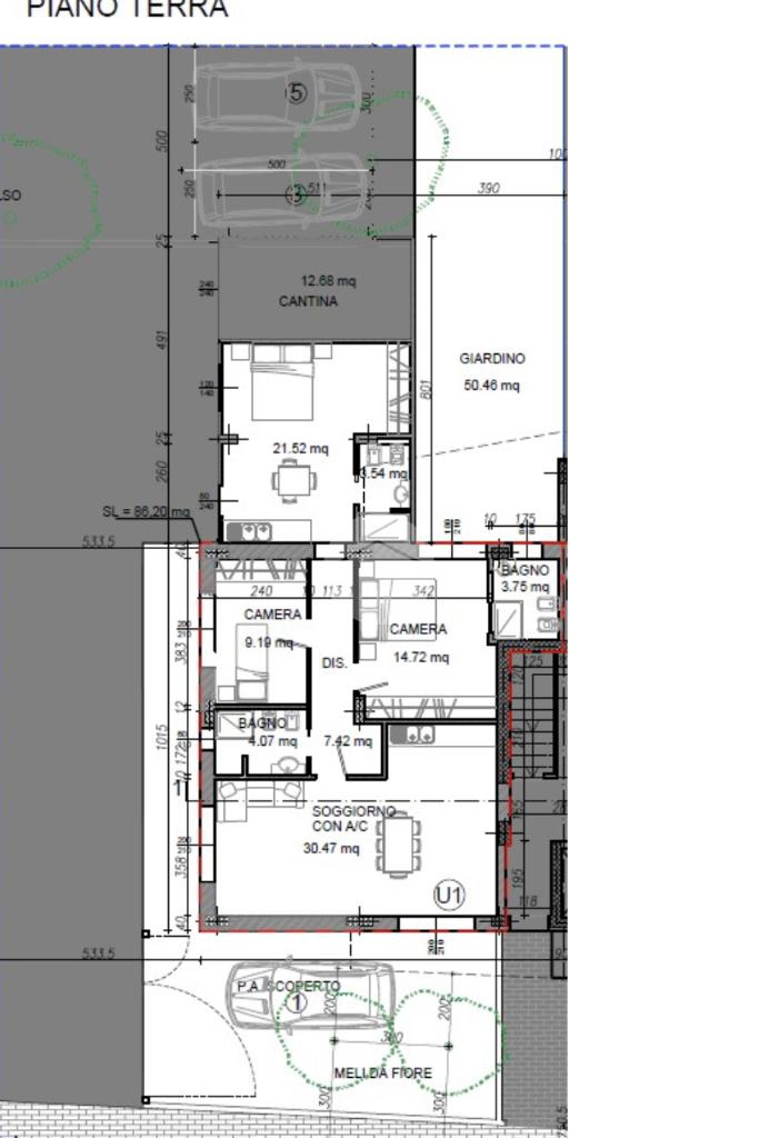
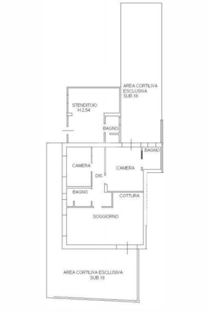
L’abitazione si compone di un ampio open space con soggiorno e cucina a vista, due camere da letto di cui una matrimoniale con bagno privato ed una camera doppia, un ulteriore bagno e ripostiglio/lavanderia.
Completa la proprietà un'ulteriore appartamento rifinito con bagno, utilizzabile anche come monolocale indipendente, oltre a terrazzo coperto, giardino e posto auto privato.


Classe energetica A3

CARATTERISTICHE:

Impianto fotovoltaico da 6 Kw con batterie di accumulo da 10 Kw

Riscaldamento a pavimento e aria condizionata in ogni ambiente

Ampie vetrate con zanzariere e tapparelle elettriche

Infissi in PVC con doppio vetro camera e termocappotto

Arredamento completo incluso

Posto auto riservato

La vendita è soggetta a imposta di registro e non ad IVA. Una soluzione luminosa e funzionale, perfetta per famiglie o per chi desidera comfort e spazi generosi a pochi passi dal mare.



PER INFORMAZIONI OPPURE ORGANIZZARE UNA VISITA, CONTATTACI:


328 221 8151 Sofia

388 458 0525 Michele

Mostra tutto

Nelle vicinanze

Trasporto pubblico Trasporto pubblico
Cervia-Milano Marittima
Cervia-Milano Marittima
2,2 Km
Pinarella Deledda Ferrara
Pinarella Deledda Ferrara
1,3 Km
Cervia Milazzo
Cervia Milazzo
1,7 Km
Ricariche auto elettriche Ricariche auto elettriche
Cervia Montale | EnelX
370 m
Cervia Deledda | EnelX
1,0 Km
Cervia Piazzale Val d'Isère | EnelX
1,0 Km
Cervia Centro Sportivo Liberazione | EnelX
1,1 Km
Cervia Via Levico | EnelX
1,4 Km
Scuole Scuole
Scuola Primaria Statale "Aldo Spallicci"
1,5 Km
Scuola Media Ressi Gervasi
1,9 Km
Scuola di Musica Gioacchino Rossini
2,3 Km
Scuola Primaria "Giovanni Pascoli"
2,3 Km
Scuola Primaria Statale "A. Manzi"
2,3 Km
Farmacia Farmacia
Farmacia Comunale n.1
340 m
Farmacia Madonna del Mare
1,3 Km
Farmacia
1,7 Km
Farmacia Bedeschi
2,4 Km
Farmacia della Pieve
2,4 Km
Ospedali Ospedali
San Giorgio
2,3 Km
Supermercati Supermercati
Conad Pinarella
120 m
Conad
250 m
Eurospin
1,6 Km
Conad Cervia
1,6 Km
Momo Spin
1,7 Km
Negozi Negozi
Truky
2,4 Km
Forno Valzania
2,5 Km
Negozi
2,9 Km
Bar Bar
Nuovo fiore
730 m
Club 99
930 m
Just Café
1,4 Km
Al KM175
2,4 Km
Portò
2,5 Km
Ristoranti Ristoranti
full moon
190 m
Pasta fresca Il mattarello
300 m
Da Luciano
580 m
Tipiko
670 m
Bagno Pineta 120
870 m
Mostra tutto

Caratteristiche

Rif.:
61151613
Piano:
Terra con giardino di 3 con ascensore
Totale piani:
3
Posti auto:
2
Terrazzi:
1
Camere da letto:
3
Mostra tutto
Prezzo Prezzo
Informazioni in agenzia
Spese annue Spese annue
€ 0
Proponi il tuo prezzoProponi il tuo prezzo

Classe Energetica

A3
A3
A3
A3
A3
A3
A3
A3
A3
EP invernale del fabbricato:
EP estiva del fabbricato:
Anno di costruzione:
2024
Riscaldamento:
Autonomo
Tipo impianto:
A pavimento
Tipo alimentazione:
Pannelli

Ti interessa visionare l'immobile?

Fissa un appuntamento  Fissa un appuntamento

Richiedi informazioni

Clicca su Leggi per aprire l'informativa
* Questi campi sono obbligatori
Affiliato
Studio Pinarella Srl
Via Caduti per la Libertà, 276 48015 Cervia (RA)

Il nostro staff


  • Sofia Michelacci
    Affiliata

  • Michele Epifani
    Affiliato

  • Angelica Paolucci
    Coordinatrice

  • Davide Perazzini
    Affiliato
Via Caduti per la Libertà, 276 48015 Cervia (RA)
Zona: Cervia-Pinarella-Tagliata-Villa Inferno-Montaletto-Pisignano-Castiglione di Cervia
Mostra su mappa
Affiliato
Studio Pinarella Srl
Via Caduti per la Libertà, 276 48015 Cervia (RA)

2026 Tecnocasa Franchising S.p.A. - P. IVA 08365160152 - Via Monte Bianco 60/A 20089 Rozzano (MI). Ogni agenzia ha un proprio titolare ed è autonoma. Privacy policy | Policy utilizzo | Cookie policy